Whatsapp »
+507 6847-7001
apartamentos

Apartamento en venta ph dovle, coco del mar

Venta de apartamentos en Coco del mar
Contactar anuncio
ID 1052-13420
Francisco Godoy -
Francisco Godoy
+507 6671... Ver telefono
Agendar una visita a la propiedad
Solicitar informacion y fotos
Hacer una oferta
Quiero que me contacten
¡Respuesta en minutos!
Encuentre el apartamento perfecto para usted.
Deje en nuestras manos la búsqueda de su apartamento.
Consultas por Whatsapp las 24hs:
+507 6847-7001
Ver fotos »
¿Quieres ver propiedades similares a esta? Tenemos propiedades con las mismas caracteristicas.
Precio:
$330.000
Habitaciones:
3
Baños:
3
Tamaño:
82m²
¡Aprovecha nuestros descuentos especiales!
Compra ahora y financia facilmente
Pago inicial:
$ **.***
Letra quincenal:
$ *.***
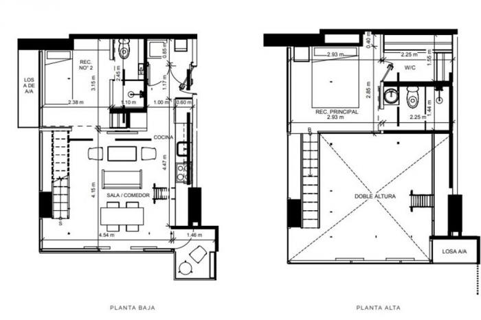
Apartamento en venta ph dovle, coco del mar Se vende un moderno apartamento de 82m2 en el ph dovle. este edificio de 15 pisos residenciales ofrece un estilo de vida minimalista que combina comodidad y estética en cada detalle.características del apartamento:3 habitaciones y 2.5 bañoscocina equipada y área de lavanderíaamplio balcón para disfrutar de las vistassistema de cerradura inteligente e iluminación automatizadaprecio de venta: $330,000.00mantenimiento $225.50 (2.75 x m2)entrega en el segundo trimestre de 2024características del ph dovle:cuatro elevadores y tres pisos de estacionamientos subterráneos para una circulación vehicular cómodapasillos con ventilación e iluminación natural, fachada con divisores adornados con gramaun hermoso parque en el segundo piso rodea todo el edificioprivacidad en el lobby y espacio peatonal con 5 metros de aceraunidades con metrajes que varían de 45m2 a 85m2, aprovechando la altura para maximizar el espaciolobby con muebles estéticos y un café exclusivo para residentesamenidades en el piso 16 con vistas al océano pacífico y al skyline citadinoproyecto sostenible:flota de autos tesla para los residentespaneles solares de última generaciónsistemas de recolección de agua para áreas comunesenfoque en la disminución de la huella ambientalamenidades destacadas:smart hall para conferenciasrecording studio para crear contenidobook center con una amplia selección de librosproductivity space con salas de conferenciademo kitchen para cocinar y sorprender a los invitadosfire pit para disfrutar de las nochesthe garden, un jardín rodeando la torremulti-use space para actividades como zumba y yogaplay arena con videojuegos de última generaciónthe beach pool con 32 metros de largo y vista al marfit yoga con un deck de madera rodeado de aguacardio room bien equipadofire bar con cócteles y vistas panorámicaspet hotel para cuidar a tus mascotasubicación en coco del mar: ofrece acceso a diferentes puntos de la ciudad y se encuentra a unas cuadras del parque omar, el pulmón de la ciudad. esta área combina sofisticación con funcionalidad y vibrante vida urbana. con numerosos comercios cercanos, es el lugar perfecto para vivir, disfrutar de una comida con amigos, pasear en bicicleta o simplemente relajarse mientras admiras la vista al mar.
Ubicacion:
Coco del mar
¿Quieres ver propiedades similares a esta? Tenemos propiedades con las mismas caracteristicas.
Bienes raices Coco del mar
Apartamentos en Coco del mar
Enviar propiedades
Actualmente encontramos 7 propiedades.
Escribe el Whatsapp donde quieres recibirlas: